Project description

Botanical Haven is a serene wellness spa nestled within the lush surroundings of the Royal Botanic Garden Edinburgh, offering picturesque views of Edinburgh Castle. Designed for guests aged 16 and over, it provides a tranquil sanctuary for those seeking relaxation, rejuvenation, and a deeper connection to the natural world.

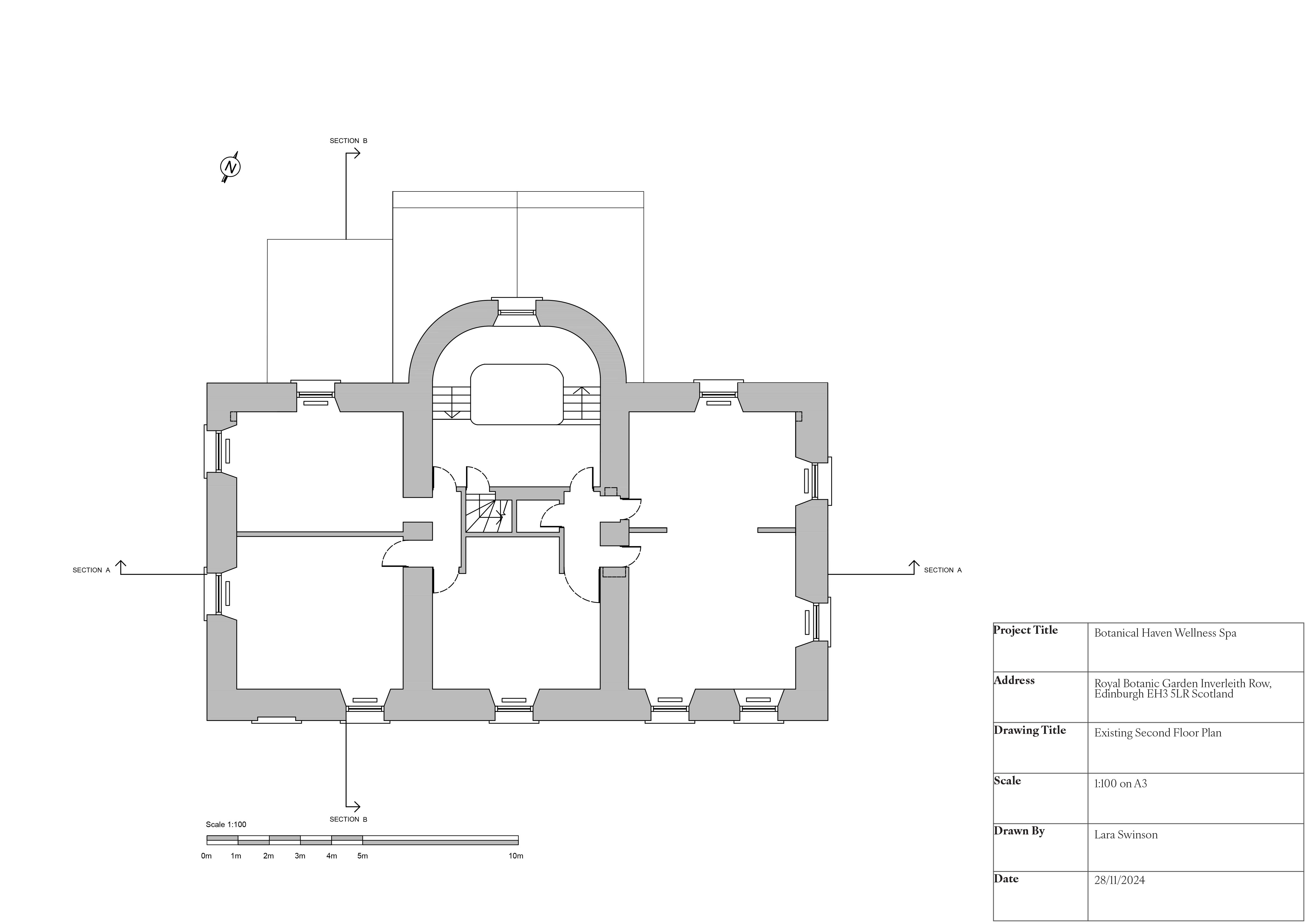
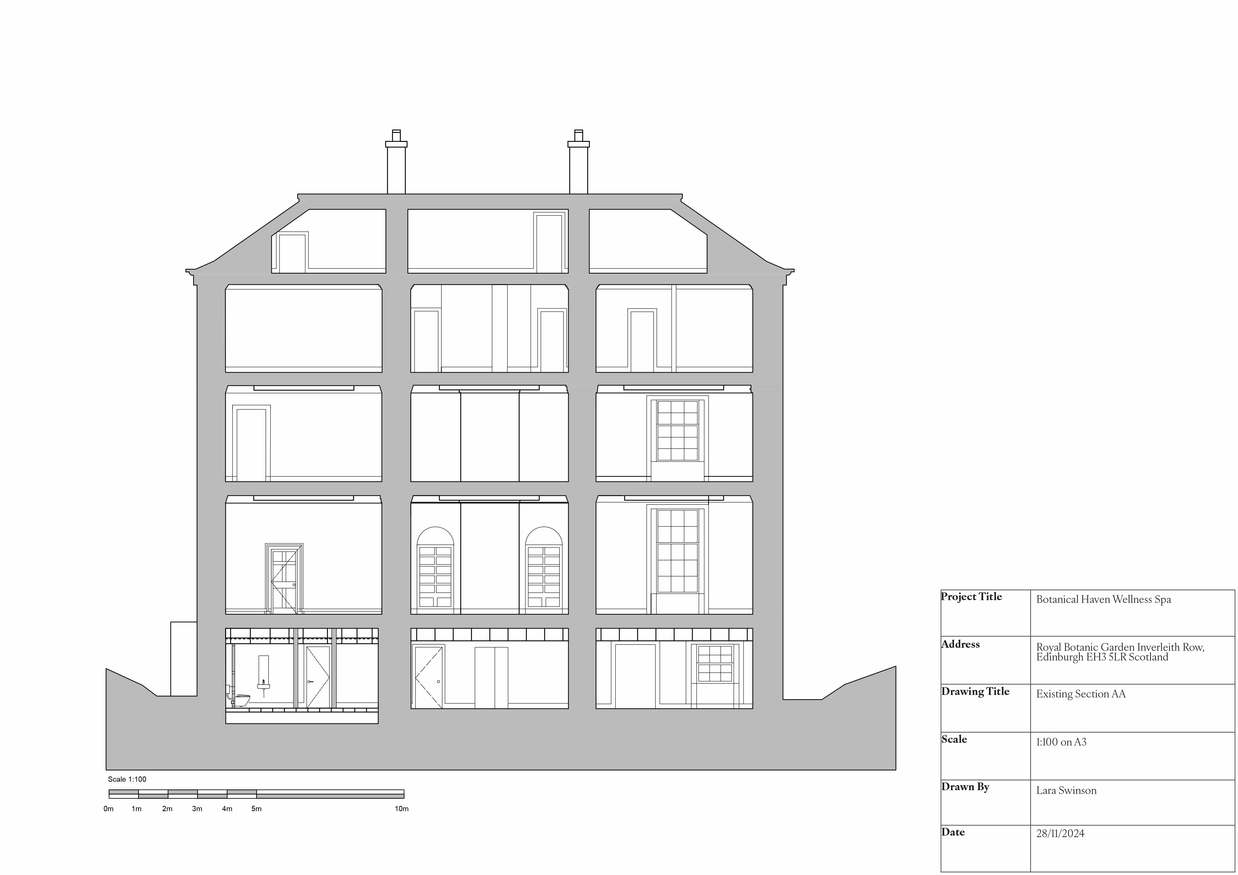
Located within Inverleith House, a charming 17th-century Georgian building, the new spaces are sensitively integrated into the existing structural plan, opening up at ground floor to connect spaces and views to the exterior landscape. The wellness spa offers a variety of immersive, nature-inspired experiences including a biophilic pool and a herbal sauna with private changing rooms, a snug library, and a ‘garden-to-table’ herbal tea lounge. Guests can also take part in yoga and meditation sessions, and enjoy specialised spa treatments and aromatherapy using fresh botanical ingredients. 

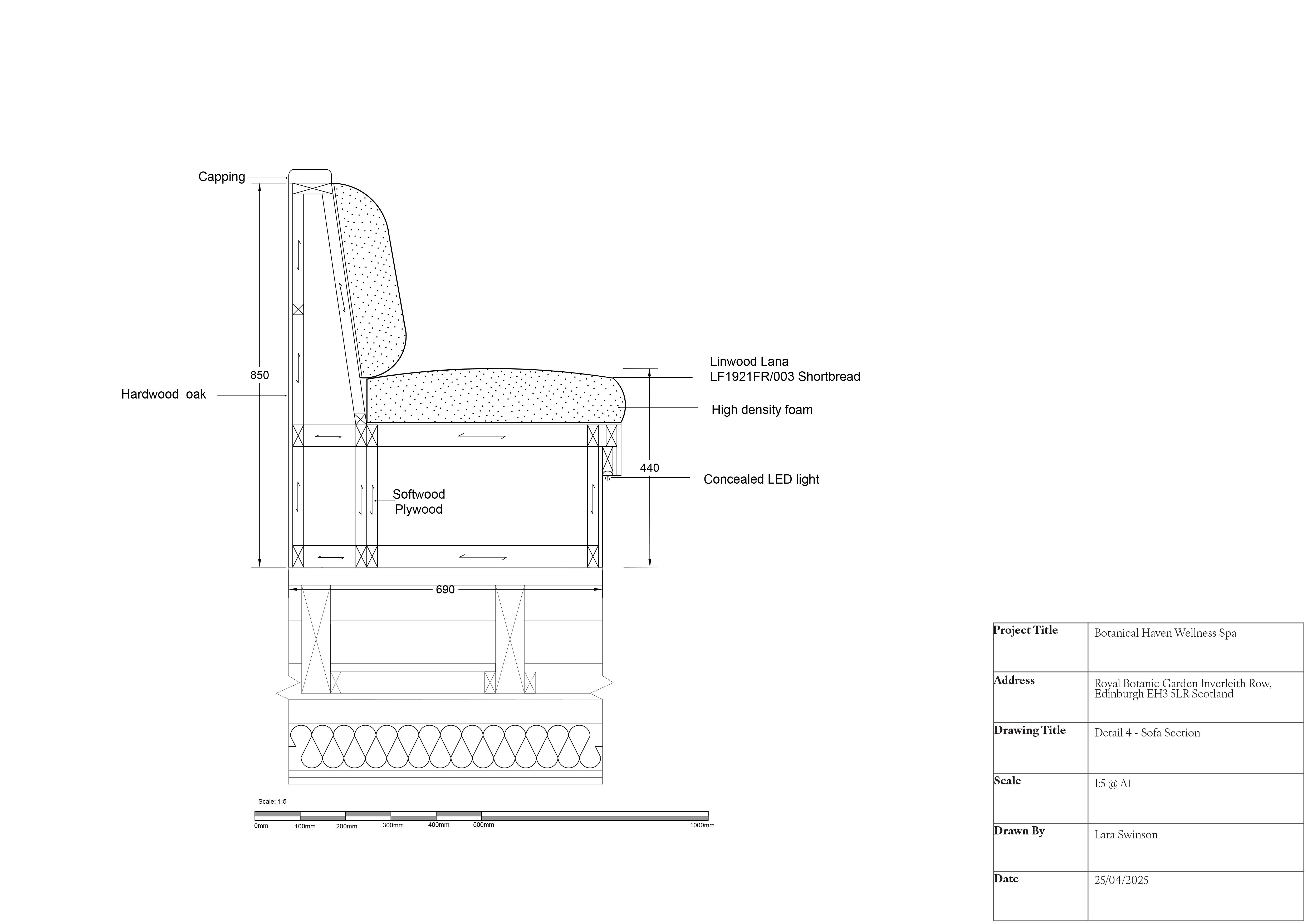
The space is thoughtfully designed with sustainability and biophilic principles at its core, incorporating environmentally conscious elements such as FSC-certified European oak and recycled materials. Water features including a rainwater pool and a gentle waterfall as well as abundant greenery create a harmonious connection between the wellness spa and its natural landscape.