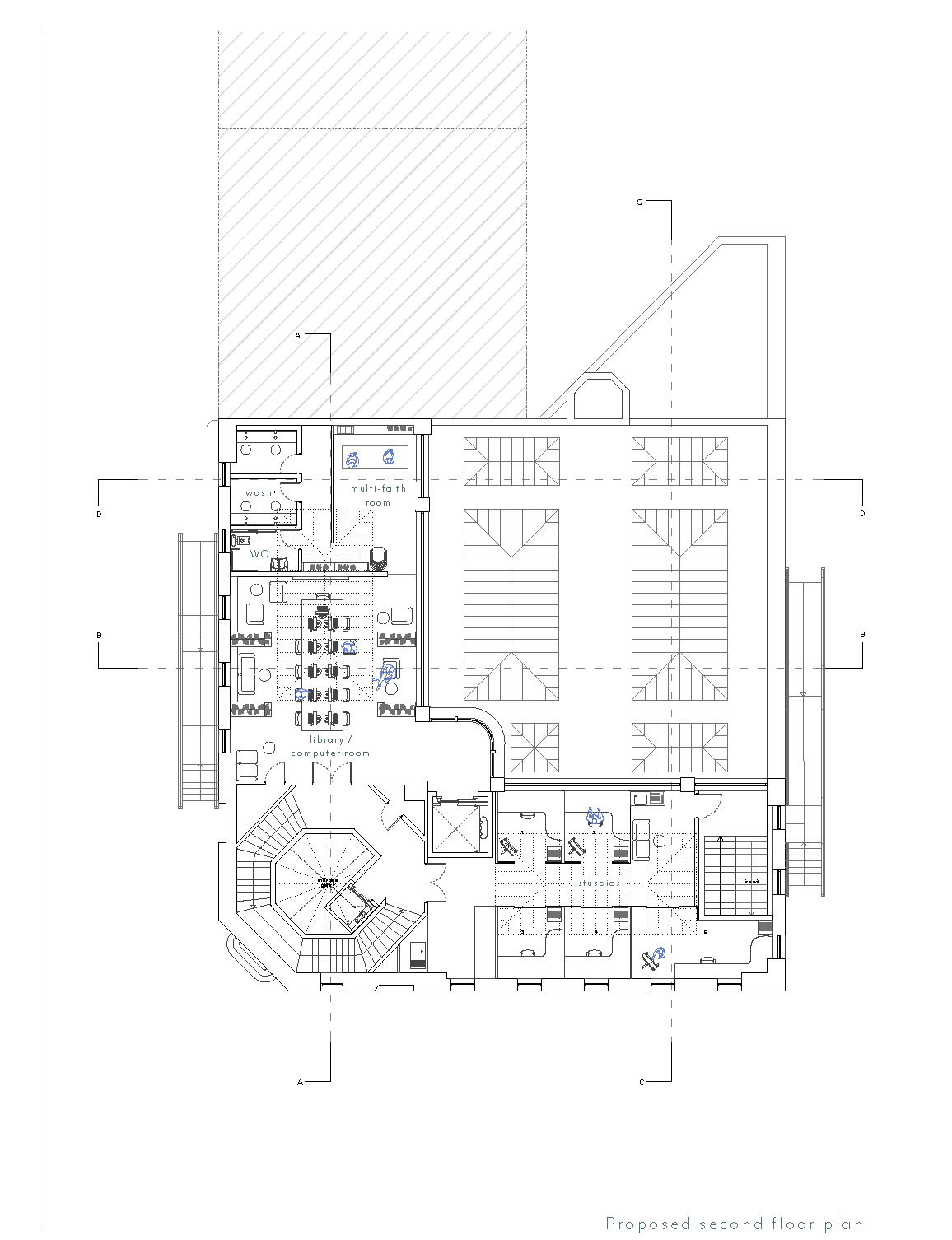
Project description

Creativity is often undervalued, particularly among those who missed out on early access to the arts. Cultural and socioeconomic barriers, especially within BAME communities, can discourage creative exploration and contribute to a lack of representation and diversity in the creative industries.

This project aims to address these inequalities by providing low-pressure, beginner-friendly workshops in drawing and painting, a community materials hub, exhibitions of artists’ work, and a welcoming social space. Together, these elements foster inclusive access to arts education, and creative expression within a flexibly designed environment.

Existing Building

Based in Fountainbridge Library, The selected building for this project is a 1940s Art Deco-influenced Neo-Classical building with high ceilings and full-length windows, making it the space is ideal for creative workshops, gallery exhibitions, and bright, open social spaces. 

 

Design Influences

The interior design for this project takes cue from the simplicity of traditional galleries, enhanced with textures and patterns inspired by art materials. Features include ceiling baffles mimicking the flow of watercolours, Moroccan Zellige-inspired handrails, and South Asian Paisley (Boteh) motifs in the doors.

Final visual isometric of proposed designs showing workshops and cafe / events space expand
Final visual isometric of proposed designs