Skills & Experience
  • Part 1 Assistant - 5plus Architects
  • Architectural Intern - Richard Murphy Architects
  • Architectural Assistant - Thomas de Cruz Architects
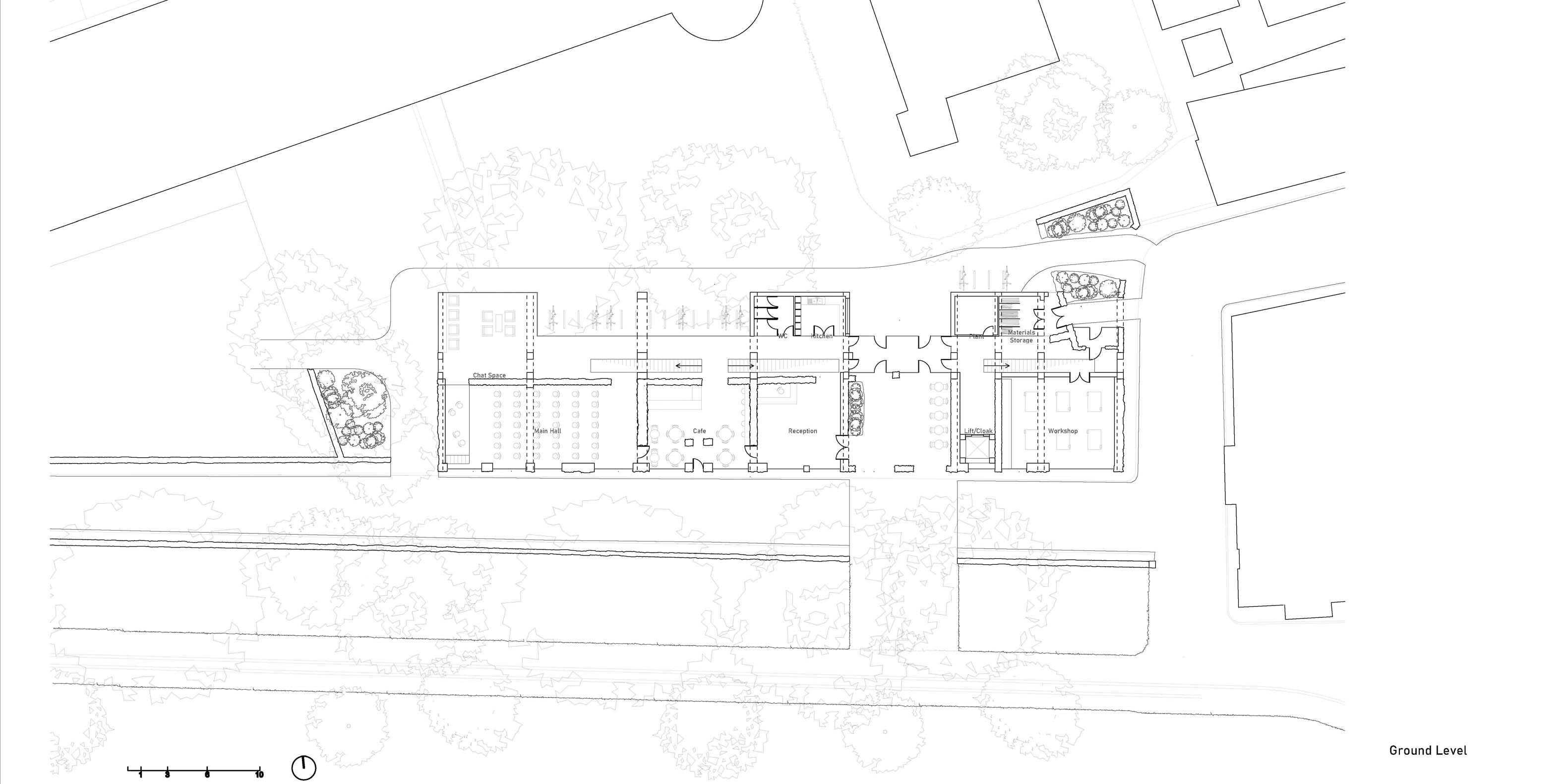
The Dunbar Production Centre

The building approaches the traditional mundanity of food production facilities with the sheer weight of known and unknown history held with and around the site. This is one sense of the uncanny. Architects and dads alike tend to fetishise the obscure history behind buildings from the wall at the end of the garden to the newspapers in the attic. Yet, beyond this, one reviewer commented ‘who really cares?’ Therefore, the proposal would have to marry history with the functional needs of the Ridge or food producing tenants, the process of rationalising materials and finally, the traversal of the site to Dunbar’s residents.

The Dunbar Production Centre therefore proposes a grid-driven set of plots. Within these the Ridge sculpts footprints of lettable buildings for culinary (but really any) form of tenant producer. The grid system and circulatory spine avoid over-designed inadaptable volumes and provide room for expansion beyond the program proposed.

This also considers interfaces, both commercial at the West and public-facing at the East. In a sense, if one proposed a large brewery or singular program this would be out of touch with the Ridge’s resources and an architectural fantasy.

Metallurgical Remains - The Ravenscraig Steelworks

A vast brownfield site, an enigma of post-industrial wilderness, an artefact of history and an asset to the community - Ravenscraig perilously lies in the hands of developers. Their plans to mechanically erase and resurface the site through monotype sprawl are alien. A masterplan oversimplifies and rigidifies complex field conditions.


A toolkit comprising three overarching categories aims to protect the site by the following means:
• Fortification - to militarily restrict developers from physically using the site
• Experience - to psychologically affirm the site’s value by facilitating its experience
• Industry - to make use of the site and its resources in the local economy
• Apparatus - to facilitate the above operations in all timescales


Here, as adaptable, modular and anticipative, the small parts are lesser than the whole. These parts and the connections between them unify the project but reject the idea of an overarching masterplan.
In process, we responded to the multitude of site data (both empirical and objective). This we trawled through so as to inform some reasoned approaches. Firstly, the strategy for selectively remediating or leaving fragments of the site. Yet ultimately, the application of the toolkit to protect the site in the long term.

Models - Contaminated earth and site interventions
The Bongawan Palliative Hospice - Sabah, Malaysia
Front Elevation
Access Corridor - Private Rooms
A Block of Flats - Belleville, Paris
The Meadows Lane Community Centre - Edinburgh
South Elevation
Student list
open list
close list