Project description

Located in the heart of Grangemouth, the site sits at a unique intersection of urban layers — where residential, industrial, and port infrastructures meet like tectonic plates. As the iconic Grangemouth Refinery faces decommissioning, the town’s identity stands at a critical moment of transition. Retaining and reinterpreting this industrial and social heritage is essential.
 

At the site’s core stands the former La Scala Cinema, a rare Scots Renaissance building dating to 1913. Once a cinema and later a bingo hall, it is now a disused but Category B listed structure.

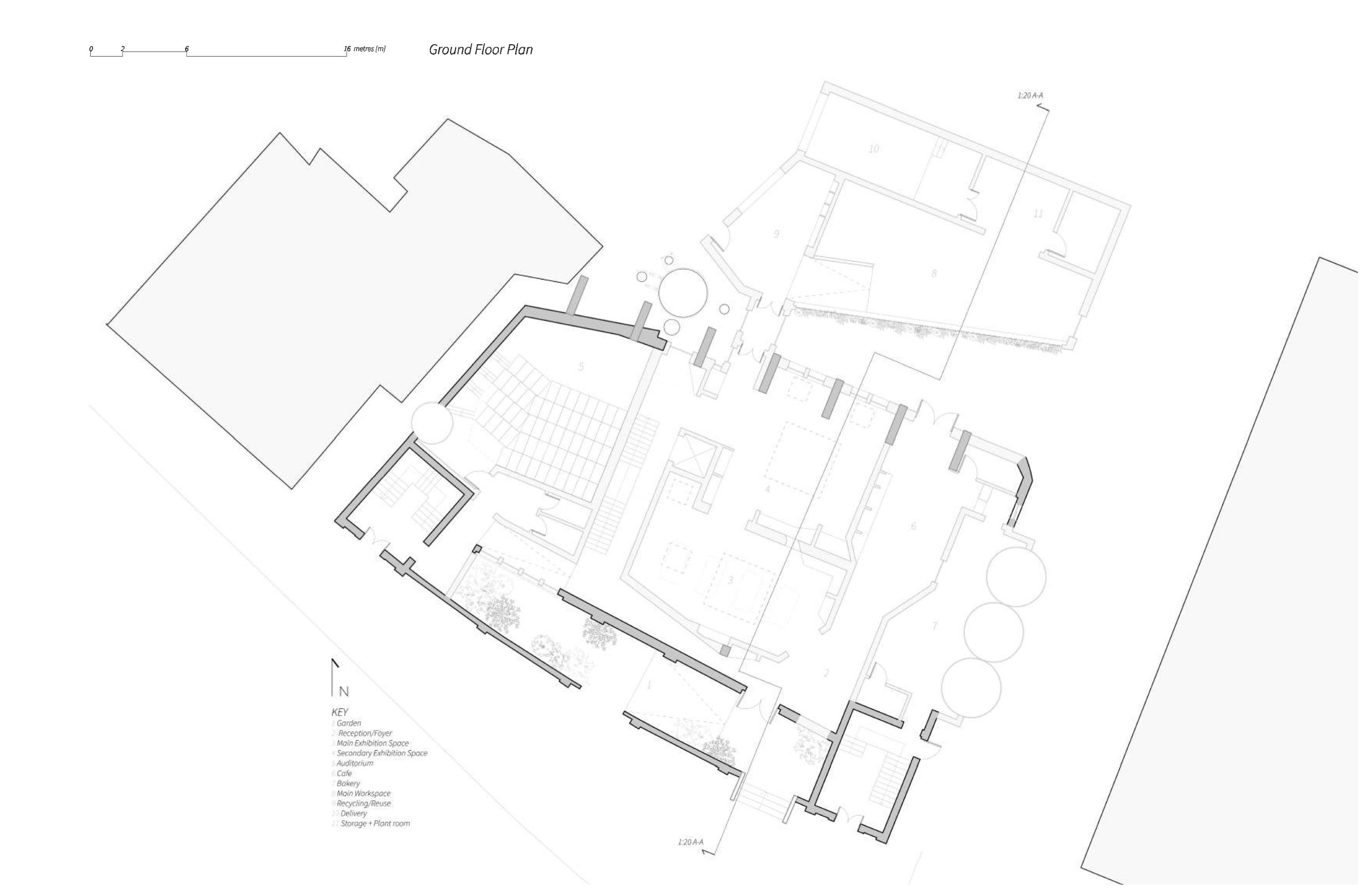
The proposal introduces stone plinths to support the existing timber trusses and a new North Façade, using locally sourced stone from Hutton Stone Quarry for material authenticity and sustainability. Repurposed steel from the refinery forms the structure of a new museum, forging a direct link to the town’s past. The museum will include exhibition spaces, an auditorium, café, and bakery — reinvigorating the site and anchoring Grangemouth’s evolving identity.
 

Final 1:50 Model
Model photo
Model photo
Model photo
Model photo
Model photo
Drone Photography of Existing Building
La Scala (Existing Building) In relation to the Refinery
La Scala In Relation to the Refinery
The Scheme
1:20 Technical Section
Ground Floor Plan
First Floor Plan
Function of Pipes
Main Exhibition Space
Main Exhibition Space
Polycarbonate Partition
Load Bearing Wall & Structure - 1:50 Section & Isometric
Load Bearing Wall & Structure - Floor Plan & Elevation
The Workshop
Student list
open list
close list